Primary School, Ivanja Reka, HR

Function: Education
Country: Croatia
Category: Innovative Public Spaces
Firm: Submap (+JKA Arhitekti)
Architects: Marija Burmas, Ivo-Lola Petrić, Jakša Kalajžić (JKA Arhitekti)
Completion of design: 2018
Year completed: 2020
Laudation
The resourceful architectural design of this primary school aptly solves a frequent social problem of neglected urban fringes. The school’s highly functional layout intertwines the interior and exterior space, thus providing the local residents with pleasantly designed playgrounds and exterior landscape. Given its already achieved popularity, the school complex is already becoming a strong focal point of Ivanja Reka’s suburban potential while ensuring its sustainable socio-cultural regeneration.
Project Description

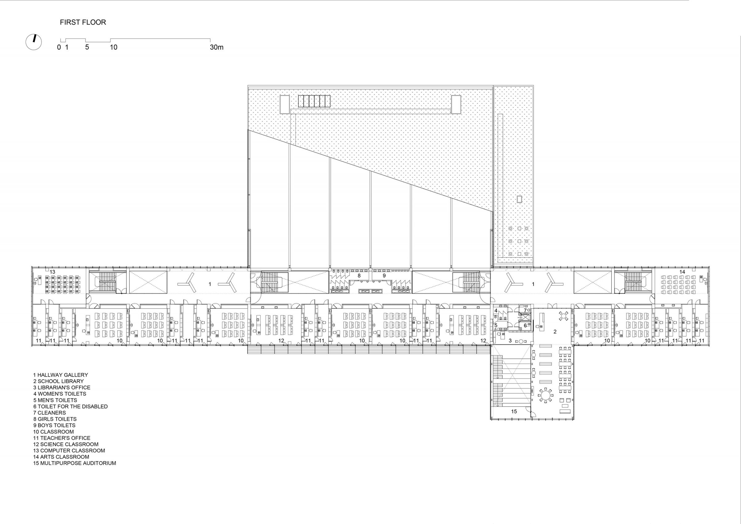
Ivanja Reka Primary School is located in an area where Zagreb's urban tissue meets the suburban zone, in the conflict zone between the urban sprawl and large-scale metropolitan infrastructures (shopping malls, industrial warehouses and traffic mega-structures). It is built on Sava's old riverbed, plagued by potential flooding and unstable soil. The neighbourhood of Ivanja Reka is located on the eastern edge of Zagreb, next to a busy traffic hub that brings together suburban and city traffic at the city's eastern entrance. The building stands in an area planned for the development of the town's central facilities. The location is defined by a busy road on the east side of the area, the local church and fire station to the north, and the football club to the south. The architectural program defined a construction of a primary school for 720 students, housed in 15 classrooms and a sports hall with a total area of 7.850 m2, on a plot of 29.288 m2. The outdoor areas include the main square and park, outdoor teaching areas, the school's training grounds with sports fields, and the traffic areas with parking. The building appears like a mirage, perhaps being reminiscent of Hollein's Aircraft Carrier City. Since the site is located in the former riverbed, any firm ground is at a considerable depth. Therefore, the building needed to be built on an embankment with reinforced ground that would protect it from floods and sinking. The mentioned constrains in the construction zone  resulted in the spatial grow of necessary infrastructural interventions. The building seeks to break the distinction between natural and artificial landscapes by forming a unified tissue, a new hybrid: an educational landscape. The north-south axis is conceived as an axis of extending public contents of urban character with graded accessibility from super-public to private. The east-west axis houses the classroom tract. By superimposing these two axes, at the meeting points, the project creates the main urban generators of public life. The pavilions of the multi-purpose auditorium, library, and sports hall are specific points, hybrids created at the contact of two types of trajectories. They are the ultimate public houses, available to both the school's users and local residents. The educational landscape serves as a "social park", a space of intercultural meeting point. The school construction is a combination of reinforced concrete skeletal structure, and steel structure. The building is divided into three constructive parts: the school, the sports hall, and the library/multipurpose auditorium. The building foundation is a slab with deep foundation pylons, as soil is of very poor quality. The load-bearing structure of the school consists of reinforced concrete frames. The construction of the sports hall and multipurpose auditorium/library is steel planar lattice triangular girders. The north and south façade is a system of aluminum framed, fixed glazed single continuous façade, with movable aluminum blinds on the south side. The west and east facade of the sports hall and multipurpose auditorium/library are translucent polycarbonate multilayer panels. The building is designed with low energy coefficient. Advanced heating and ventilation systems are installed, with heat pumps, natural gas and solar collector used as heating energy. A ground-to-water geothermal heat pump with a horizontal ground collector is used as the primary energy source. The initial investment as well as low maintenance and low energy costs are going to pay off in the long term.